Skip to content
BELATE
ACTIVIDAD
OBRAS Y REFORMAS
PROYECTOS
CONTACTO
image037
Navegación de entradas
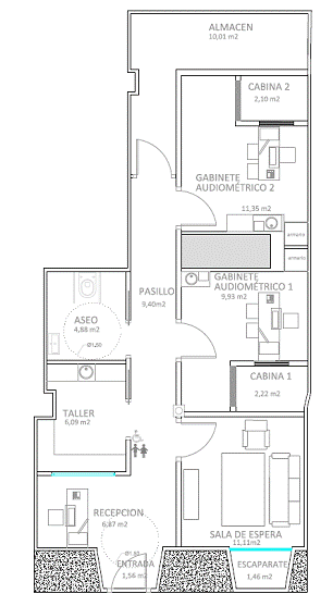
Adecuación de local para Actividad Inocua; Centro Audioprotésico
Deja una respuesta
Lo siento, debes estar
conectado
para publicar un comentario.